Digitale Barrierefreiheit bedeutet, dass Websites und Anwendungen so gestaltet sind, dass sie von allen Menschen genutzt werden können – unabhängig von körperlichen, sensorischen oder kognitiven Fähigkeiten. Dazu gehören beispielsweise anpassbare Schriftgrößen, hohe Kontraste, Tastatursteuerung und die Kompatibilität mit Screenreadern. Unser Ziel ist es, Ihnen ein Einkaufserlebnis ohne Barrieren zu ermöglichen.
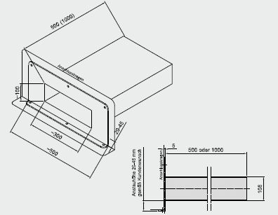
80x120mm, Typ SF eckig, weiß
ausgeschlossen
Übersicht
Das neue Flachdach-Entwässerungssystem von alwitra
ist die ideale Lösung für alle Entwässerungsfragen rund um das flach geneigte Dach.
Bei der Planung und Ausführung der Entwässerung flach geneigter Dächer sind die Vorgaben verschiedener Normen und Richtlinien verbindlich zu beachten.
Insbesondere DIN EN 12056 und DIN 1986-100 stellen konkrete Anforderungen an die Dach- und Notentwässerungssysteme.
Das neue alwitra-Flachdach-Entwässerungssystem ist:
- abgestimmt auf die speziellen Anforderungen an Dach- und Notabläufe für flach geneigte Dächer (EnEV, DIN 1986-100)
- sehr leistungsfähig: optimierte Einlaufgeometrie für hohe Abflussleistung bei gleichzeitig geringer Anstauhöhe
- extrem widerstandsfähig: aus besonders schlagzähem Polypropylen (PP) hergestellt
- umfangreich: ein großes Produktprogramm mit vielen Kombinationsmöglichkeiten bei einer geringen Anzahl von Einzelteilen.
- flexibel: neben dem Anschluss der alwitra-Dach- und Dichtungsbahnen EVALON® und EVALASTIC® können nahezu alle Dampfsperrbahnen fachgerecht und sicher angeschlossen werden
- sicher: das gesamte System ist nach DIN EN 1253 durch TÜV Rheinland LGA Products GmbH geprüft und trägt das Ü-Zeichen
Das alwitra-Flachdach-Entwässerungssystem besteht aus:
- Dachabläufen in senkrechter und waagerechter Ausführung, optional beheizt
- Aufstockelementen
- Notabläufen
- Terrassenaufsätzen
- Sanierungs-Dachabläufen
- Wasserspeiern
Rabatte
"ALW-ZUB1"!
Wenn Sie weitere Artikel dieser Preisgruppe in den Warenkorb legen, wird der Rabatt automatisch angepasst und dort angezeigt. in Preisgruppe "ALW-ZUB1" gelten folgende Rabatte:
| Mindestbestellwert | Rabatt | Preis |
|---|---|---|
Mindestbestellwert ab 119,00 € | Rabatt 3% Rabatt | Preis pro STK 17,89 € / Stück inkl. MwSt. |
Mindestbestellwert ab 595,00 € | Rabatt 5% Rabatt | Preis pro STK 17,52 € / Stück inkl. MwSt. |
Mindestbestellwert ab 1.190,00 € | Rabatt 10% Rabatt | Preis pro STK 16,60 € / Stück inkl. MwSt. |
Mindestbestellwert ab 2.380,00 € | Rabatt 15% Rabatt | Preis pro STK 15,68 € / Stück inkl. MwSt. |
Mindestbestellwert ab 4.760,00 € | Rabatt 20% Rabatt | Preis pro STK 14,76 € / Stück inkl. MwSt. |
Legen Sie den gewünschten Artikel einfach auf die Anfrage-/Merkliste und starten Sie eine Preisanfrage.
Wir machen Ihnen gerne ein individuelles Angebot!
Lieferkosten
Legen Sie den gewünschten Artikel einfach auf die Anfrage-/Merkliste und starten Sie eine Preisanfrage.
Wir machen Ihnen gerne ein individuelles Angebot!






