Digitale Barrierefreiheit bedeutet, dass Websites und Anwendungen so gestaltet sind, dass sie von allen Menschen genutzt werden können – unabhängig von körperlichen, sensorischen oder kognitiven Fähigkeiten. Dazu gehören beispielsweise anpassbare Schriftgrößen, hohe Kontraste, Tastatursteuerung und die Kompatibilität mit Screenreadern. Unser Ziel ist es, Ihnen ein Einkaufserlebnis ohne Barrieren zu ermöglichen.



675mm
ausgeschlossen
Übersicht
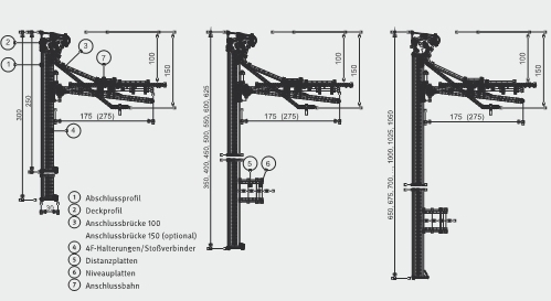
alwitra-Dachrandabschlussprofile
- industriell gefertigte montagefertige Profilserien (T plus, TW 125plus, TA , TA-4F, TAG, art-line 1) für alle Dachabdichtungen (Kunststoff- oder Bitumen-Dachbahnen) aus Aluminium
- leicht und korrosionsbeständig
- recyclebar
- werden bei Bedarf kunststoffbeschichtet
- normen- und richtlinienkonform
- für gerade oder bogenförmige Dachränder ohne und mit Randaufkantung (Attika)
- mit ebener oder profilierter Ansicht und Ansichtshöhen von 80 bis 1050 mm und mit nicht betonten oder betonten Stößen
- mit praxisbewährtem spannungsfreien Anschluss an die Dachabdichtung
- montagefertige Außen-/Innenecken und Endkappen
- auf einfachste Weise schnell montierbar
Passende Produkte
Lieferkosten
Legen Sie den gewünschten Artikel einfach auf die Anfrage-/Merkliste und starten Sie eine Preisanfrage.
Wir machen Ihnen gerne ein individuelles Angebot!
