Digitale Barrierefreiheit bedeutet, dass Websites und Anwendungen so gestaltet sind, dass sie von allen Menschen genutzt werden können – unabhängig von körperlichen, sensorischen oder kognitiven Fähigkeiten. Dazu gehören beispielsweise anpassbare Schriftgrößen, hohe Kontraste, Tastatursteuerung und die Kompatibilität mit Screenreadern. Unser Ziel ist es, Ihnen ein Einkaufserlebnis ohne Barrieren zu ermöglichen.



350mm, 2,5m, kpl.
ausgeschlossen
Beschreibung
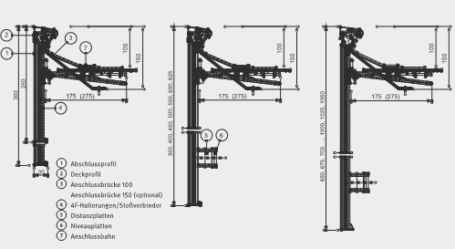
alwitra-Dachrandabschlussprofil TAG
- mehrteiliges Aluminiumprofil
- Ansichtshöhe: 250 - 1.050 mm
- serienmäßig mit patentierten 4F-Halterungen
- stufenlos höhenverstellbar, horizontal verschiebbar, drehbar, winkelverstellbar
einsetzbar auf:
geraden und bogenförmigen Dachrändern
Dachrändern mit und ohne Aufkantung (Attika)
Dachrändern mit Randbohlen
- mehrteiliges, gewalztes Aluminiumprofil, korrosionsbeständig
- 2,5 m Deckprofilstäbe für den materialgleichen und spannungsfreien Anschluss der Dachabdichtung
- mit stufenlos höhenverstellbaren, patentierten, biegesteifen 4F-Halterungen/Stoßverbindern mit integrierten Dichtungen
- 5,0 m gewalzte Profilstäbe von 250 bis 625 mm Ansichtshöhe
- 2,5 m gekantete Profilstäbe von 650 bis 1.050 mm Ansichtshöhe
- mit 5,0 / 2,5 m Anschlussbrückenstäben zur Linienbefestigung sowie zur Sicherung der Abdichtung gegen Windunterströmung entlang des Dachrandes und s-förmiger Ausformung der Anschlussbahn
- einfach und schnell montierbar
Zubehör
Lieferkosten
Legen Sie den gewünschten Artikel einfach auf die Anfrage-/Merkliste und starten Sie eine Preisanfrage.
Wir machen Ihnen gerne ein individuelles Angebot!


